Центральный кондиционер с высокой энергетической эффективностью
Расход воздуха от 4000 до 25000 м3/ч
Установки серии DeltaMax II содержат в себе максимальное количество технологических инноваций в области обработки воздуха. Серия DeltaMax II была специально разработана для сведения к минимуму потребления энергии, которое составляет около 80% от стоимости всего жизненного цикла установки по обработке воздуха. Двойная система рекуперации тепла (статическая и активная) и новаторская система охлаждения с адиабатическим увлажнением позволяют довести воздух, подаваемый в помещение, до желаемых условий с минимальными энергетическими затратами. Наличие заслонки полного байпаса обеспечивает свободное охлаждение в межсезонье, при использовании внешних источников охлаждения. Серия DeltaMax II произведена при полном соблюдении стандарта EN1886, касающегося механической устойчивости, утечек воздуха, тепловых характеристик и звукоизоляции. Оборудование поставляется в полной заводской готовности с кабельной продукцией и монтажными материалами.
Доступно 5 типоразмеров
DeltaMax II Std: стандартная модель, с двойной системой рекуперации и системой охлаждения с адиабатическим увлажнением
DeltaMax II Eco: модель с рециркуляционной заслонкой
DeltaMax II Dry: модель с газовым калорифером вторичного подогрева для
систем отопительных панелей
Plug and play: модель оснащена комплектом автоматики и внутренним холодильным контуром для сокращения времени и стоимости монтажа
Несущий каркас "Сэндвич" панели толщиной 50 мм
Широкий спектр аксессуаров


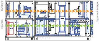
Схемы работы - DeltaMax II Std

|
Зимний период
Вытяжной воздух пересекает рекуператор тепла, передавая тепло наружному приточному воздуху; оставшееся тепло передается испарителю теплового насоса. Наружный воздух на притоке вначале нагревается проходя через роторный рекуператор и затем вторично подогревается конденсатором теплового насоса и водяным теплообменником (опция) до желаемых показателей для подачи его в помещение.
|
|
Период межсезонья (свободное охлаждение с полным байпасом)
Вытяжной воздух полностью выбрасывается наружу через заслонку байпас и не попадает в рекуператор. Приточный воздух забирается снаружи и напрямую подается в помещение.
|
|
Период межсезонья (адиабатическое охлаждение)
Вытяжной воздух охлаждается адиабатически и проходит через рекуператор, где передает явное тепло приточному вохдуху. При такой схеме работы энергетическая эффективность максимально увеличивается, т.к. охлаждение происходит без использования холодильного контура.
|
|
Летний период (высокая наружная температура)
Вытяжной воздух охлаждается адиабатически и проходит через рекуператор, где передает явное тепло приточному воздуху. Приточный воздух охлаждается как посредством обмена тепла в роторном рекуператоре, так и благодаря испарителю холодильного контура.
|
Схемы работы - DeltaMax II Dry
|
Зимний период
Вытяжной воздух проходит через роторный рекуператор тепла, передавая тепло наружному приточному воздуху; оставшееся тепло передается испарителю теплового насоса. Наружный воздух на притоке вначале нагревается, проходя через рекуператор, затем вторично подогревается конденсатором теплового насоса и в конце газовым теплообменником до желаемых показателей для подачи его в помещение.
|
|
Период межсезонья (свободное охлаждение с частичным байпасом)
Вытяжной воздух частично выбрасывается наружу через заслонку-байпас, частично проходит через рекуператор, где отдает тепло приточному воздуху.
|
|
Период межсезонья (свободное охлаждение с полным байпасом)
Вытяжной воздух полностью выбрасывается наружу через заслонку байпас и не попадает в рекуператор. Приточный воздух забирается снаружи и напрямую подается в помещение.
|
|
Летний период (высокая наружная температура)
Вытяжной воздух охлаждается адиабатически и проходит через рекуператор, где передает явное тепло приточному вохдуху. Приточный воздух охлаждается как посредством обмена тепла в роторном рекуператоре, так и благодаря испарителю холодильного контура. Возможно точно регулировать температуру подаваемого в помещение воздуха благодаря газовому теплообменнику вторичного подогрева.
|
Схемы работы - DeltaMax II Eco
|
Зимний период
Вытяжной воздух проходит через рекуператор тепла, передавая тепло наружному приточному воздуху; оставшееся тепло передаётся испарителю теплового насоса. Наружный воздух на притоке вначале нагревается, проходя через роторный рекуператор, и затем вторично подогревается конденсатором теплового насоса и водяным теплообменником (опция) до желаемых показателей для подачи его в помещение.
|
|
Зимний период (полная рециркуляция)
Для того чтобы быстро довести воздух в помещении до нужных показателей, во время запуска установки весь поток вытяжного воздуха рециркулируется (рециркуляционная заслонка открыта) и направляется через водяной теплообменник вторичного подогрева.
|
|
Период межсезонья (свободное охлаждение с частичным байпасом)
Вытяжной воздух частично выбрасывается наружу через заслонку-байпас, частично проходит через рекуператор, где отдает тепло приточному воздуху.
|
|
Период межсезонья (свободное охлаждение с полным байпасом)
Вытяжной воздух полностью выбрасывается наружу через заслонку-байпас и не попадает в рекуператор. Приточный воздух забирается снаружи и напрямую подается в помещение.
|
|
Период межсезонья (адиабатическое охлаждение)
Вытяжной воздух охлаждается адиабатически и проходит через рекуператор, где передает явное тепло приточному вохдуху. При такой схеме работы энергетическая эффективность максимально увеличивается, т.к. охлаждение происходит без использования холодильного контура.
|
|
Летний период (полная рециркуляция)
Для того чтобы быстро довести воздух в помещении до нужных показателей, во время запуска установки весь поток вытяжного воздуха рециркулируется (рециркуляционная заслонка открыта).
|
|
Летний период ( высокая наружная температура)
Вытяжной воздух охлаждается адиабатически и проходит через рекуператор, где передает явное тепло приточному вохдуху. Приточный воздух охлаждается как посредством обмена тепла в роторном рекуператоре, так и благодаря испарителю холодильного контура.
|
Анализ стоимости жизненного цикла установки
Анализ жизненного цикла на примере одной установки показывает, что стоимость начальных инвестиций составляет только 15% от общей стоимости полного цикла жизни установки; поэтому оставшиеся 80% в большей мере зависят от потребления энергии, основанного на условиях эксплуатации установки, и отчасти от расходов по ее обслуживанию.
Поэтому очень важно выбирать установки с низким расходом энергии, чтобы обеспечить эффективную энергоэкономию на всем протяжении срока ее эксплуатации.
Симуляция стоимости жизнен- ного цикла показывает как применение установки по обработке воздуха высокой эффективности DeltaMax II позволяет достигнуть ощутимой экономии энергии и следовательно экономии на протяжении всего срока ее жизни.

Характеристики
Plug and play (включили и работайте): установки серии DeltaMax II поставляются уже готовыми к эксплуатации. В частности, установка оснащена полным комплектом автоматики и холодильным контуром монтированным и тестированным, уменьшая таким образом стоимость и сроки ее монтажа и запуска.
Несущий каркас изготовлен из алюминиевых профилей с углами из армированного нейлона. Панели типа «сэндвич» толщиной 50 мм крепятся к каркасу с помощью новой эксклюзивной технологии без применения винтов. Такая система обеспечивает равномерное давление по всему периметру и полностью исключает утечки воздуха (класс L1 – EN 1886) и воды.
Регулирующая заслонка на байпасе из алюминия с аэродинамическими лопатками, установленная на потоке вытяжки для обеспечения свободного охлаждения. Дополнительная рециркуляционная заслонка (только в версии Eco). Аккуратная конструкция обеспечивает минимальное количество утечек.
Вентиляторы центробежные с лопатками загнутыми назад высокой производительности.
Электродвигатели высокой эффективности (класс EFF1). Частотный регулятор (инвертер) для непрерывной регулировки расхода воздуха как приточного, так и вытяжного (опция). По запросу возможна установка вентиляторов с прямым приводом повышенной эффективности.
Системы фильтрации предлагаются различные типы фильтров (плоские и карманные), которые позволяют удовлетворить любые требования к фильтрации и обеспечить соответствие действующим нормам к качеству воздуха в помещениях. Поставляется дифференциальный датчик давления загрязненных фильтров.
Рекуперация тепла: роторный рекуператор повышенной эффективности. Поставляется датчик против замораживания.
Активная рекуперация тепла: встроенный тепловой насос обратимый. Парные спиральные компрессоры (одиночные для моделей 040 и 060) с вибропоглощающими резиновыми опорами; постоянный контроль холодопроизводительности посредством инвертера для обеспечения максимальной энергоэкономии и в режиме частичной загрузки. Двойной электронный вентиль. 4-ходовой вентиль обратимого цикла. Теплообменники с медными трубками и алюминиевыми пластинами. Экологический хладагент R410A гарантирует бережное отношение к окружающей среде и одновременно повышает энергоэффективность холодильного контура.
Теплообменник повторного нагрева водяной в версии Std (опционально) и Eco (стандартно), газовый в версии Dry (стандартно).
Система адиабатического охлаждения посредством воды, распыляемой в потоке вытяжки с помощью самоочищающихся форсунок распылителей и насосного модуля высокого давления, служащего для увеличения теплообмена в двойном рекуператоре.
Система увлажнения: посредством воды, распыляемой в приточном воздухе. Нижние поверхности установки снабжены дренажными панелями со сливом в центре для обеспечения непрерывного оттока воды, чтобы избежать застоя.
Комплект автоматики с щитом управления встроен в установку. Дистанционная панель для контроля всех основных функций и для визуализации аварийного сигнала.
Микропроцессор для контроля и регулировки, способен управлять различными режимами работы, гарантируя максимальную экономию энергии. Интерфейс RS485 серийный (протокол MODBUS) для связи с системой супернадзора и контроля на расстоянии. Смена сезона ручная (лето/зима).
По дополнительному запросу водяной теплообменник вторичного подогрева (только для версии Eco), свободное охлаждение (возможно только при наличии контроля температуры в помещении), карманные фильтры, вентиляторы с прямым приводом с встроенным контролем за скоростью вращения.


|